3 bedrooms
2.1 bathrooms
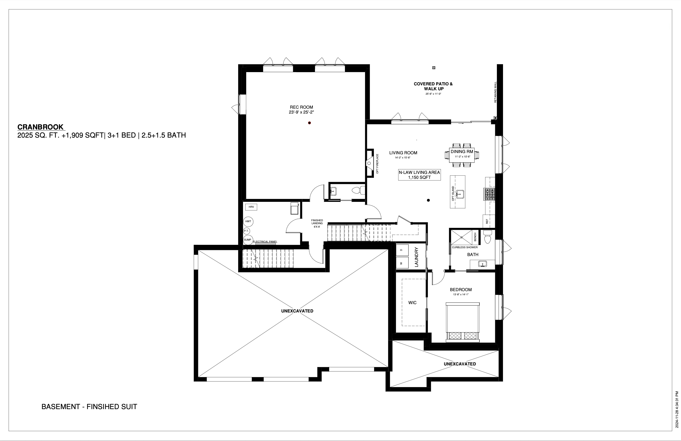
2025 sqft
Single Family Residence
Property Type
98.4ft x 229.7ft
Lot Dimensions
S12718736
MLS Number
Not Yet Assessed
Property Taxes
Total Views: 404
Listing updated: Feb 21, 2026
Property Description
Considering a spring build? The planning process starts now.
Pricing reflects the all-in cost of the Cranbrook model situated on a premium ravine lot. Buyers are not limited to this design — choose a smaller or larger home, customize an existing plan, or bring your own design (subject to the approved building envelope).
An exceptional opportunity to build your custom estate home on one of four premium rural ravine lots in the highly desirable community of Midhurst. Opportunities of this calibre are rare, offering the perfect blend of privacy, space, and convenient access to Barrie, schools, and everyday amenities. Each lot backs onto Environmental Protection (EP) lands, providing a private natural setting.
These properties are offered as design-build opportunities with a reputable local builder with over 30 years of experience. The builder has written authorization from the landowner to market proposed homes for sale, and any agreement of purchase and sale will be conditional upon the builder successfully securing the Buyer’s selected lot.
Conceptual floor plans and renderings are for illustration only and are priced using standard luxury finish selections. Renderings may show optional upgrades not included in the base price.
Buyers may select from the builder’s portfolio of thoughtfully designed homes, customize plans, or submit their own designs. The builder provides a fully integrated design experience, including an in-house BCIN-qualified architectural designer and interior designer, ensuring a seamless process from concept to completion. Model homes are available for viewing.
Lots may also be purchased separately, subject to availability. A rare opportunity to secure a custom home in one of Simcoe County’s most desirable communities, where design flexibility, proven craftsmanship, and location come together.
Taxes not yet assessed. Municipal address not yet assigned.
More More homes for sale Homes For Sale
- Family Home on Quiet Court
10 Gordon Court, Barrie, ON, L4N 7A4
3.1
bed
·3.2
bath
·4,679
sqft
$1,075,000For Sale
- Midhurst Ravine Lot 4
2774 Old Second Road South, Midhurst, On, L9X 1P6
Rural Building Lot
$449,900 + HSTFor Sale
- Midhurst Ravine Lot 3
2774 Old Second Road South, Midhurst, On, L9X 1P6
Rural Building Lot
$449,900 + HSTFor Sale
- Midhurst Ravine Lot 2
2774 Old Second Road South, Midhurst, On, L9X 1P6
Rural Building Lot
$464,900 + HSTFor Sale

















